Жилой комплекс Крона
Жилой комплекс Крона






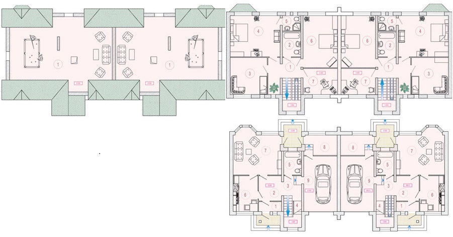
Планировки домов:










Коттеджный поселок «Крона» - компактный, клубный поселок бизнес класса в стиле неокласики, расположенный в экологически чистом районе подмосковья. Рядом с поселком распологаются березовая роща и река Истра.
Поселок имеет инфраструктуру европейского класса, которая обеспечивается инженерными коммуникациями, выполненными в строгом соответствии с мировыми стандартами проектирования и строительства. Жезнедеятельность поселка обеспечивается центральными комунникациями (электроснабжение, газоснабжение, водоснабжение, водоотведение и телефонизация)
Поселок распологается на охраняемой территории и обеспечен всем для спокойной, загородной жизни. На трерритории поселка распологается десткие площадки и пешеходные зоны
Инфраструктура:
В самом поселке, располагаются детская площадка и парковая территория для прогулок.
В непосредственной близости от поселка находятся торговые центры: «Княжий двор» и «Павлово подворье». Детские сады и школы: Детский садик «Апельсин», Школа и детсад «Лидер», Ломоносовская школа «Интек» (удаленность 8км), Павловская гимназия (удаленность 9км). Также рядом находятся: Клуб «Лужки», пансионат «Липки» и учебный центр Авиамаркет.
КОТТЕДЖИ: Площадью: от 277 до 699,7 кв. м.
Уважаемые посетители данного сайта, это не «замануха», объект был в реализации нашей компании, если Вы хотите приобрести аналогичный лот, или у Вас есть потребность в реализации объекта, в Вашей собственности в данной локации или ближайших районах, пожалуйста обращайтесь, комиссия (вознаграждение) нашего экспертного бюро составит от 1 до 5 % от стоимости объекта на день подписания договора купли-продажи недвижимости.
Уважаемый посетитель данного сайта, если Вы дошли до минуты, когда смотрите этот текст, вероятно у Вас есть интерес к данному жилому комплексу, а по сему, пожалуйста сделайте звонок по номеру телефона 89154654323, чтобы узнать подробности и если пожелаете реализовать свою недвижимость.


